TidescapeModel

17347 Kennedy Dr

North Redington Beach, FL 33708

$4,985,000

Luxury Hurricane-Resistant Home for Waterfront Living

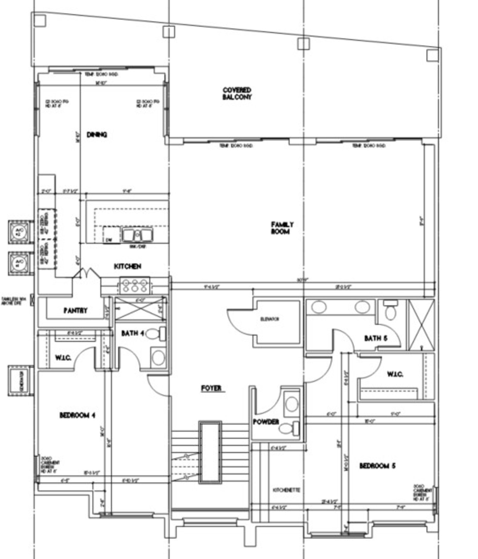
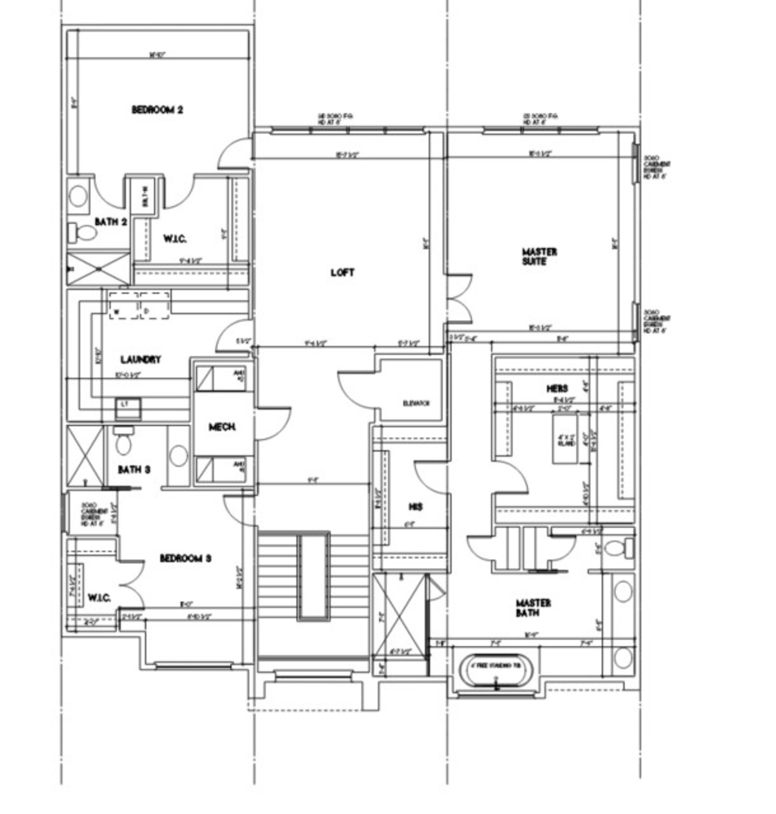
The Tidescape offers 4,312 square feet of elevated living space designed for large families, multi-generational households, and luxury waterfront estates. Five bedrooms and five bathrooms provide room for extended family gatherings, long-term guests, or high-end vacation rental operations. Built to withstand hurricane-force winds and storm surge, the Tidescape combines structural engineering with luxury coastal amenities. Over 1,000 square feet of covered porches, an integrated elevator, and waterfront features including boat lifts and a Trex dock define this as Seasafe Homes’ premium coastal model.
Tidescape Model

Waterfront Infrastructure Designed for Boaters

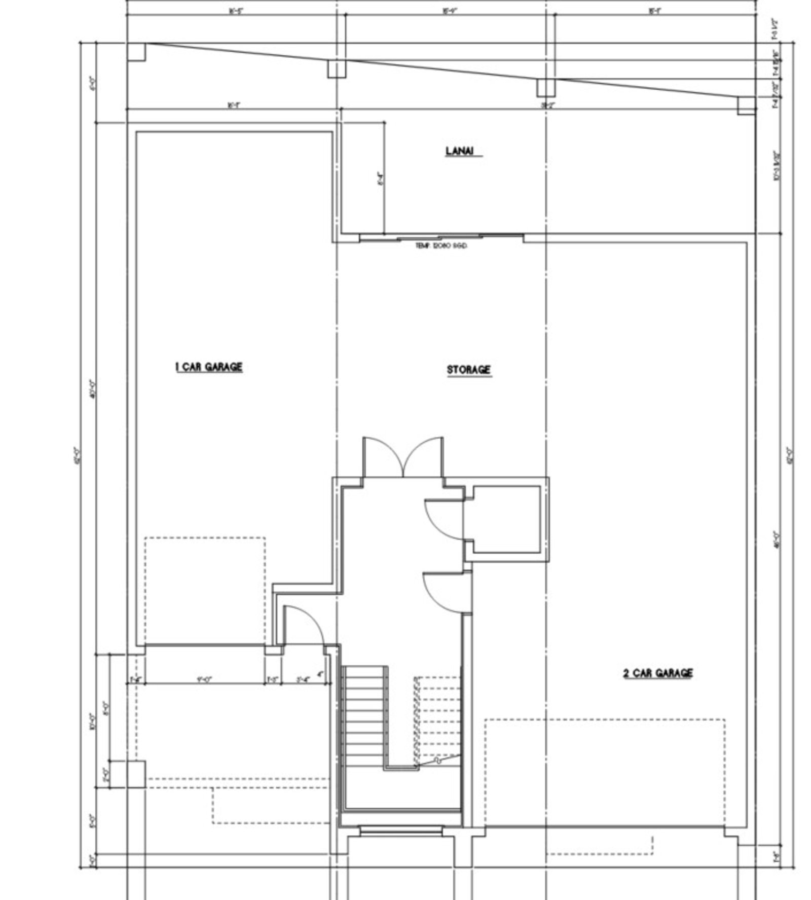
The Tidescape is built for homeowners who use the water. Two boat lifts and a Trex composite dock are integrated into the property design, providing protected storage for watercraft and direct access to coastal waterways. The elevated concrete and masonry foundation includes a four-car garage on the ground floor, allowing secure vehicle storage while maintaining compliance with flood zone requirements. Reinforced supporting walls manage storm surge and protect the structure during high water events.
Tidescape Model Interior

Hurricane Engineering for Larger Homes

Larger coastal homes face higher wind loads and greater structural demands. The Tidescape is engineered to handle these forces through reinforced framing, continuous load paths, and impact-rated building envelope protection.

Foundation and Structural Support

Deep pilings extend 25+ feet into the ground, anchoring the home against uplift forces. Elevated concrete and masonry construction creates a platform above FEMA base flood elevation while supporting the weight of a multi-level structure.

Wind Load Management

The structural frame uses engineered connections, metal strapping, and tie-down systems that transfer wind forces from roof to foundation. Hurricane-rated impact windows and doors, combined with Hardie architectural panels, protect the building envelope from wind-driven debris.

Flood Protection

Breakaway walls and flood vents allow water to flow through the ground floor during storm surge, reducing pressure on structural components. The elevated design keeps living areas dry while protecting mechanical systems, electrical panels, and finished spaces.

Tidescape Model Interior

Interior Features

  • Expansive open-concept living, dining, and kitchen area
  • Chef’s kitchen with large walk-in pantry and extended bar seating
  • Five bedrooms including master suite with direct porch access
  • Five full bathrooms throughout the home
  • Master bath with spacious walk-in shower and relaxing garden tub
  • Two oversized walk-in closets in master suite
  • Elevator providing convenient access across all levels
  • Over 1,000 square feet of covered porches for outdoor living
  • Carefully refined interior finishes throughout
Tidescape Model Interior

Two-Site Construction for Complex Projects

Larger homes traditionally take longer to build. More square footage means more framing, more mechanical systems, more finish work. Weather delays compound. Traditional timelines for luxury coastal homes extend to 24+ months.
The Tidescape uses Two-Site Construction to compress this schedule without reducing quality. Living spaces are built in a controlled Build Center while the foundation and ground floor work progresses onsite. Both phases advance in parallel.
Modules arrive onsite 75-80% complete with finishes protected throughout construction. Set day completes in one day using cranes. Final onsite work finishes in 10-12 weeks. Total timeline from permit approval: six months typical, even for this larger model.

Tidescape Model Interior

Cost Implications of Faster Construction

For a luxury coastal home in the million-dollar-plus range, every month of construction delay increases costs. Construction loan interest on larger projects compounds quickly. Builder’s risk insurance and property taxes continue throughout the build. Material price inflation adds 4-5% annually.

A traditional 24-month build versus a six-month build represents 18 months of avoided carrying costs. On a $1.5 million project, that time difference can exceed $200,000 in interest, insurance, and inflation alone—before accounting for rental income opportunities or personal use.

Tidescape Model Interior

Customization at Scale

Luxury homes require more detailed finish selections. Seasafe Homes manages this through curated collections that balance design freedom with schedule protection.

You select from professionally designed finish packages, then customize key elements: premium countertop materials, high-end appliance suites, custom cabinetry designs, luxury plumbing fixtures, hardwood or premium tile flooring, exterior materials including composite decking and architectural siding, and specialized features like elevator finishes and outdoor kitchen integration.

This approach maintains the six-month timeline while delivering a home that reflects your personal style and functional requirements.

Tidescape Model Interior

Specifications

Bedrooms:

5

Bathrooms:

5 full

Living Area:

4,312 square feet

Covered Porch Area:

Over 1,000 square feet

Ground Floor:

Four-car garage

Waterfront Features:

Two boat lifts, Trex dock

Elevator:

Included for multi-level access

Construction:

Hurricane-rated impact windows and doors, Hardie architectural panels

Typical Build Timeline:

6 months from permit approval

Built for Coastal Waterfront Sites

Waterfront properties require specialized foundation design. Seasafe Homes conducts geotechnical soil testing, topographic surveys, and site analysis to determine proper piling depths, elevation levels, and structural requirements. With over 20 years of coastal construction experience, we understand permitting requirements for waterfront development, including dock permits, setback rules, and environmental considerations for marine habitats.
Tidascape Model

Insurance and Property Value

Luxury coastal homes require substantial insurance coverage. Hurricane-resistant construction features reduce premiums through carrier discounts on elevated foundations, impact-rated protection, and engineered structural systems.
These same features protect long-term property value. The Tidescape’s engineering, waterfront amenities, and quality construction maintain market position in high-end coastal real estate.

Tidescape Model

Next Steps

The Tidescape represents Seasafe Homes’ approach to luxury waterfront construction. To discuss this model or your coastal building project, contact Seasafe Homes.

Tidescape Model

Welcome to the Wavecrest Model, where coastal living meets the future of resilience and innovation. Built for extreme environments, this home sets a new standard in hurricane-proof design. Featuring a robust 2×10 floor system and 2×6 walls, it’s engineered to endure wind speeds of up to 180 MPH, going beyond the typical 150 MPH codes most builders follow. Whether you’re in North Fort Myers Beach or the Florida Keys, this home offers ultimate protection, strength, and peace of mind.

Designed for Coastal Living, Built for Safety and Style
The Wavecrest is more than just a home—it’s a smart, family-friendly space. Step inside through the spacious front porch, into a welcoming foyer complete with double coat closets. The large hallway flows effortlessly into the open-concept living, dining, and kitchen area, all at the rear of the home. The chef’s kitchen includes a walk-in pantry and a long bar top, perfect for casual meals or entertaining guests.

With 4 well-appointed bedrooms, this model is ideal for larger families or vacation rentals. One of the secondary bedrooms features a private bath and an optional exterior entry, making it easily convertible into a rental lock-out room for added flexibility. The rear of the home opens to a sprawling porch that stretches across the entire back, perfect for enjoying the coastal breeze. The master suite offers direct access to this porch, along with a luxurious master bath, including a garden tub, spacious walk-in shower, and a large walk-in closet—ideal for growing families.

Designed for Your Lot and Lifestyle
Whether your beach lot is 60′ x 100′ or larger, the Wavecrest fits most coastal properties, including those on 50’ wide lots in various municipalities. With 4 bedrooms and 3.5 bathrooms, the home invites natural light into its open living space, creating a bright, airy atmosphere perfect for the relaxed beach lifestyle.

Built for Efficiency and Speed
Beyond strength and beauty, every SeaSafe home is Zero Energy Ready, with high-efficiency systems and superior insulation, all included as standard features—something that often costs extra elsewhere. Thanks to advanced off-site construction methods, your Wavecrest home is completed in 75% less time, ensuring protection from the elements and a quicker move-in.

Rebuild with Confidence
Create your dream coastal sanctuary with the Wavecrest Model, where resilience, efficiency, and thoughtful design come together to provide a safe, sustainable, and stylish home.

You said:

replace everyplace it says Wavecrest with Seaglass

ChatGPT said:

Seaglass Faster Stronger Elevated: The Seaglass Model by SeaSafe Homes

Welcome to the Seaglass Model, where coastal living meets the future of resilience and innovation. Built for extreme environments, this home sets a new standard in hurricane-proof design. Featuring a robust 2×10 floor system and 2×6 walls, it’s engineered to endure wind speeds of up to 180 MPH, going beyond the typical 150 MPH codes most builders follow. Whether you’re in North Fort Myers Beach or the Florida Keys, this home offers ultimate protection, strength, and peace of mind.

Designed for Coastal Living, Built for Safety and Style
The Seaglass is more than just a home—it’s a smart, family-friendly space. Step inside through the spacious front porch, into a welcoming foyer complete with double coat closets. The large hallway flows effortlessly into the open-concept living, dining, and kitchen area, all at the rear of the home. The chef’s kitchen includes a walk-in pantry and a long bar top, perfect for casual meals or entertaining guests.

With 4 well-appointed bedrooms, this model is ideal for larger families or vacation rentals. One of the secondary bedrooms features a private bath and an optional exterior entry, making it easily convertible into a rental lock-out room for added flexibility. The rear of the home opens to a sprawling porch that stretches across the entire back, perfect for enjoying the coastal breeze. The master suite offers direct access to this porch, along with a luxurious master bath, including a garden tub, spacious walk-in shower, and a large walk-in closet—ideal for growing families.

Designed for Your Lot and Lifestyle
Whether your beach lot is 60′ x 100′ or larger, the Seaglass fits most coastal properties, including those on 50’ wide lots in various municipalities. With 4 bedrooms and 3.5 bathrooms, the home invites natural light into its open living space, creating a bright, airy atmosphere perfect for the relaxed beach lifestyle.

Built for Efficiency and Speed
Beyond strength and beauty, every SeaSafe home is Zero Energy Ready, with high-efficiency systems and superior insulation, all included as standard features—something that often costs extra elsewhere. Thanks to advanced off-site construction methods, your Seaglass home is completed in 75% less time, ensuring protection from the elements and a quicker move-in.

Rebuild with Confidence
Create your dream coastal sanctuary with the Seaglass Model, where resilience, efficiency, and thoughtful design come together to provide a safe, sustainable, and stylish home.