Paradise PointModel

310 10th Ave, Indian Rocks Beach

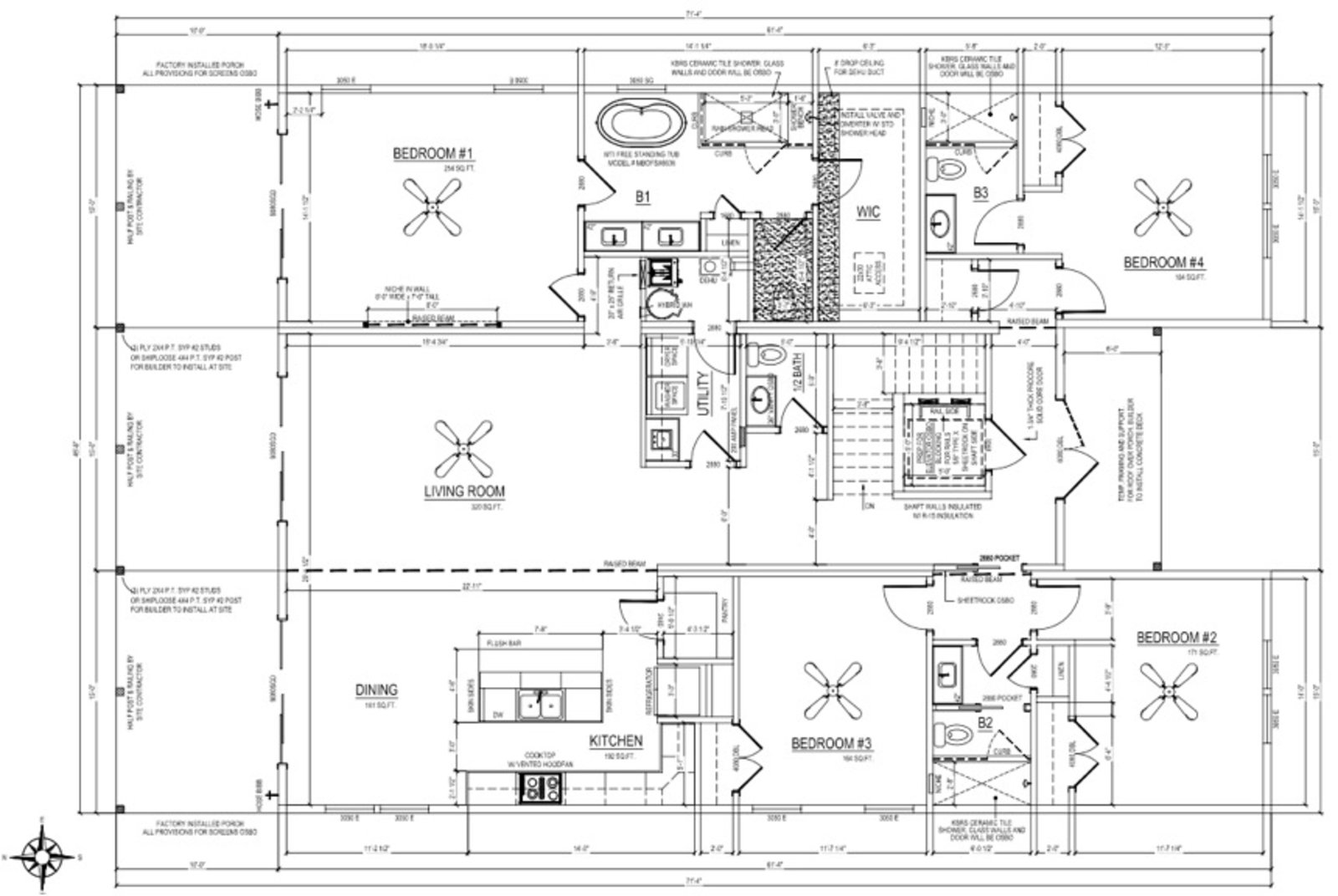
Paradise Point Model

by Sea Safe Homes

Designed to excel in extreme coastal environments, the Paradise Point Model represents the pinnacle of strength and innovation. With its sturdy 2×10 floor system and robust 2×6 walls, this home is engineered to withstand winds up to 180 MPH, making it hurricane-proven in resilient locales like North Fort Myers Beach and the Florida Keys. While many builders adhere to standard codes of 150 MPH, every SeaSafe home is crafted to surpass these expectations, providing you with unmatched safety and peace of mind.

The Paradise Point features a smart, family-friendly design, making it ideal for both large families and vacation rentals. Enter through the spacious front porch into a welcoming foyer, complete with double coat closets. The generous hallway leads to an expansive open-concept living, dining, and kitchen area at the rear of the home. The kitchen is a chef’s delight, boasting a large walk-in pantry and a long bar top perfect for casual dining and entertaining.

With 4 well-appointed bedrooms, this model offers flexibility to meet your needs. One of the secondary bedrooms includes a private bath and an optional exterior entry door, easily allowing for conversion into a rental lock-out room. Each room at the back of the home opens onto a sprawling rear porch that stretches across the entire back of the house, perfect for enjoying the coastal breeze. The master bedroom suite features direct access to the porch and includes a luxurious master bath with a relaxing garden tub, spacious walk-in shower, and oversized walk-in closet—perfect for a growing family.

Designed to fit most beach lots measuring 60′ x 100′ or larger, the Paradise Point also accommodates 50′ wide lots in various municipalities. With 4 spacious bedrooms and 3.5 bathrooms, this home invites natural light into its open living area, creating a bright and airy atmosphere.

In addition to its strength and style, every SeaSafe home is Zero Energy Ready, featuring high-efficiency sealed systems and superior insulation as standard—elements that often come at a premium elsewhere. Utilizing our advanced off-site construction methods, your home is completed in 75% less time, ensuring it remains protected from the elements throughout the building process.

Rebuild with confidence and create your dream coastal sanctuary with the Paradise Point Model, where resilience, efficiency, and thoughtful design converge.

Property Details

Bedrooms:

4

Bathrooms:

3full 1half

Living Area:

2,250 sqft

Lot Size

6,098 sqft

Year Built

2025

Stories

2

Features

Large Kitchen

Open Floor Plan

Side-by-Side Washer and Dryer

Stainless Steel Appliances

Walk-In Closets

Welcome to the Wavecrest Model, where coastal living meets the future of resilience and innovation. Built for extreme environments, this home sets a new standard in hurricane-proof design. Featuring a robust 2×10 floor system and 2×6 walls, it’s engineered to endure wind speeds of up to 180 MPH, going beyond the typical 150 MPH codes most builders follow. Whether you’re in North Fort Myers Beach or the Florida Keys, this home offers ultimate protection, strength, and peace of mind.

Designed for Coastal Living, Built for Safety and Style
The Wavecrest is more than just a home—it’s a smart, family-friendly space. Step inside through the spacious front porch, into a welcoming foyer complete with double coat closets. The large hallway flows effortlessly into the open-concept living, dining, and kitchen area, all at the rear of the home. The chef’s kitchen includes a walk-in pantry and a long bar top, perfect for casual meals or entertaining guests.

With 4 well-appointed bedrooms, this model is ideal for larger families or vacation rentals. One of the secondary bedrooms features a private bath and an optional exterior entry, making it easily convertible into a rental lock-out room for added flexibility. The rear of the home opens to a sprawling porch that stretches across the entire back, perfect for enjoying the coastal breeze. The master suite offers direct access to this porch, along with a luxurious master bath, including a garden tub, spacious walk-in shower, and a large walk-in closet—ideal for growing families.

Designed for Your Lot and Lifestyle
Whether your beach lot is 60′ x 100′ or larger, the Wavecrest fits most coastal properties, including those on 50’ wide lots in various municipalities. With 4 bedrooms and 3.5 bathrooms, the home invites natural light into its open living space, creating a bright, airy atmosphere perfect for the relaxed beach lifestyle.

Built for Efficiency and Speed
Beyond strength and beauty, every SeaSafe home is Zero Energy Ready, with high-efficiency systems and superior insulation, all included as standard features—something that often costs extra elsewhere. Thanks to advanced off-site construction methods, your Wavecrest home is completed in 75% less time, ensuring protection from the elements and a quicker move-in.

Rebuild with Confidence
Create your dream coastal sanctuary with the Wavecrest Model, where resilience, efficiency, and thoughtful design come together to provide a safe, sustainable, and stylish home.

You said:

replace everyplace it says Wavecrest with Seaglass

ChatGPT said:

Seaglass Faster Stronger Elevated: The Seaglass Model by SeaSafe Homes

Welcome to the Seaglass Model, where coastal living meets the future of resilience and innovation. Built for extreme environments, this home sets a new standard in hurricane-proof design. Featuring a robust 2×10 floor system and 2×6 walls, it’s engineered to endure wind speeds of up to 180 MPH, going beyond the typical 150 MPH codes most builders follow. Whether you’re in North Fort Myers Beach or the Florida Keys, this home offers ultimate protection, strength, and peace of mind.

Designed for Coastal Living, Built for Safety and Style
The Seaglass is more than just a home—it’s a smart, family-friendly space. Step inside through the spacious front porch, into a welcoming foyer complete with double coat closets. The large hallway flows effortlessly into the open-concept living, dining, and kitchen area, all at the rear of the home. The chef’s kitchen includes a walk-in pantry and a long bar top, perfect for casual meals or entertaining guests.

With 4 well-appointed bedrooms, this model is ideal for larger families or vacation rentals. One of the secondary bedrooms features a private bath and an optional exterior entry, making it easily convertible into a rental lock-out room for added flexibility. The rear of the home opens to a sprawling porch that stretches across the entire back, perfect for enjoying the coastal breeze. The master suite offers direct access to this porch, along with a luxurious master bath, including a garden tub, spacious walk-in shower, and a large walk-in closet—ideal for growing families.

Designed for Your Lot and Lifestyle
Whether your beach lot is 60′ x 100′ or larger, the Seaglass fits most coastal properties, including those on 50’ wide lots in various municipalities. With 4 bedrooms and 3.5 bathrooms, the home invites natural light into its open living space, creating a bright, airy atmosphere perfect for the relaxed beach lifestyle.

Built for Efficiency and Speed
Beyond strength and beauty, every SeaSafe home is Zero Energy Ready, with high-efficiency systems and superior insulation, all included as standard features—something that often costs extra elsewhere. Thanks to advanced off-site construction methods, your Seaglass home is completed in 75% less time, ensuring protection from the elements and a quicker move-in.

Rebuild with Confidence
Create your dream coastal sanctuary with the Seaglass Model, where resilience, efficiency, and thoughtful design come together to provide a safe, sustainable, and stylish home.