Madeira Beach, FL 33708
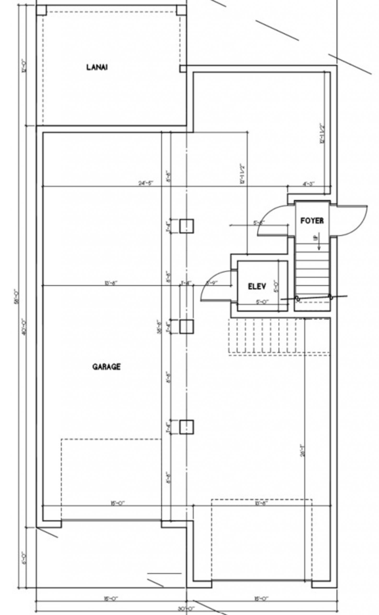
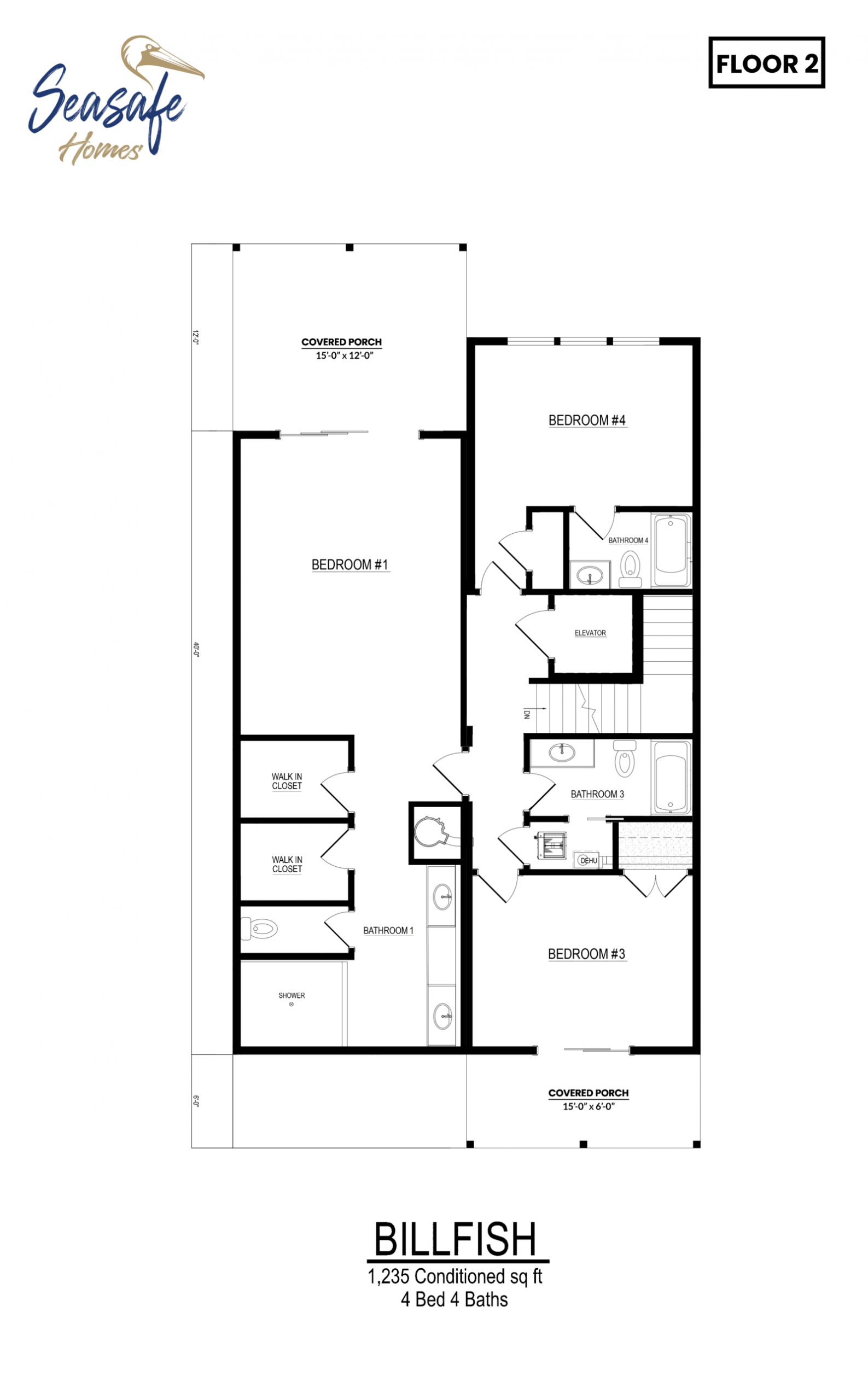
The Billfish delivers 2,486 square feet of living space with four bedrooms and four-and-a-half bathrooms. This elevated home is built for larger families, multi-generational use, or investors targeting the vacation rental market in Florida’s coastal areas.
Engineered for 180 MPH wind loads and elevated above FEMA flood levels, the Billfish handles extreme coastal conditions while providing the open floor plan and covered outdoor spaces that define modern waterfront living. The home fits 45 to 100-foot-wide lots and is completed in six months on average using Seasafe Homes’ Two-Site Construction method.
For investors, timing determines profitability. A traditional coastal build taking 18 to 24 months means lost rental income while construction drags on. With the Billfish’s six-month timeline, you start booking guests a full year earlier.
On a typical Gulf Coast vacation rental, that year of delay costs over $150,000 in lost income plus construction loan interest and insurance. Faster completion means faster cash flow and earlier return on investment.
The Billfish also works for families who want personal vacation access while renting the property most of the year. Four bedrooms with private bathrooms give guests privacy. The open-concept living area accommodates groups without feeling cramped.
Every Billfish home is built to withstand the forces that define Florida coastal construction: high winds, storm surge, and saltwater exposure.
Deep pilings driven 25+ feet into the ground anchor the structure. Reinforced grade beams and concrete slabs create the elevated platform required by flood zone regulations. This foundation system is site-specific, designed after geotechnical soil testing and review of local elevation requirements.
The 2×10 floor system and 2×6 exterior walls are connected with engineered hurricane strapping and tie-downs that transfer wind forces from the roof through the walls to the foundation. This continuous structural connection prevents separation during extreme weather events.
Windows and doors are rated to resist wind-borne debris and prevent building envelope breach. Keeping the envelope sealed during a hurricane reduces internal pressurization that can lift roofs and blow out walls.
Traditional coastal construction sequences each phase: foundation, framing, rough-in, finishes. Weather delays any outdoor work. Trades wait on inspections. The schedule extends.
Two-Site Construction runs phases in parallel. While the onsite crew builds the foundation and ground floor masonry, living spaces are constructed in a controlled Build Center 75-80% complete before delivery. No rain delays. No material exposure. Higher quality control.
When both phases are ready, the modules transport to your lot and set in one day. Final connections and finishes complete in 10 to 12 weeks. Total timeline from permit to move-in: six months typical.
Seasafe Homes streamlines customization by offering curated finish collections instead of unlimited options. You select from professionally designed packages for interiors and exteriors, then personalize key elements like countertops, cabinetry, flooring, paint colors, and exterior materials.
This reduces decision-making from over 1,500 choices to approximately 150 focused selections. The process protects the construction timeline while giving you control over the home’s appearance and functionality.
Common customizations include cabinet styles, countertop materials (quartz, granite), appliance packages, flooring types, plumbing fixtures, exterior siding (Hardie plank, board-and-batten), roofing materials, window frame colors, and porch railing designs.
Bedrooms:
4
Bathrooms:
4 full, 1 half
Living Area:
2,486 square feet
Lot Compatibility:
45 to 100-foot-wide lots
Wind Rating:
180 MPH sustained winds
Construction:
2×10 floor system, 2×6 exterior walls
Typical Build Timeline:
6 months from permit approval
Seasafe Homes prepares structural, elevation, and site plans designed for coastal municipality review. With over 20 years of experience in Florida’s coastal jurisdictions, we understand local requirements for flood zones, setbacks, and hurricane building codes.
This experience reduces permit delays and resubmissions. We design foundation systems based on site-specific soil conditions and elevation requirements determined by topographic surveys and local regulations. The Billfish floor plan is engineered to meet FEMA and Florida Building Code standards.
Hurricane-resistant construction features reduce insurance costs. Elevated foundations, impact-rated windows and doors, and continuous structural connections qualify for discounts with most insurance carriers in Florida coastal zones.
For rental properties, these same features protect your investment and attract renters who value safety. Homes built to current hurricane standards also maintain stronger resale value in coastal markets.
The Billfish combines the space needed for extended families or rental income with engineering designed for Florida’s coastal environment. To discuss this model or your waterfront building project, contact Seasafe Homes.
Welcome to the Wavecrest Model, where coastal living meets the future of resilience and innovation. Built for extreme environments, this home sets a new standard in hurricane-proof design. Featuring a robust 2×10 floor system and 2×6 walls, it’s engineered to endure wind speeds of up to 180 MPH, going beyond the typical 150 MPH codes most builders follow. Whether you’re in North Fort Myers Beach or the Florida Keys, this home offers ultimate protection, strength, and peace of mind.
Designed for Coastal Living, Built for Safety and Style
The Wavecrest is more than just a home—it’s a smart, family-friendly space. Step inside through the spacious front porch, into a welcoming foyer complete with double coat closets. The large hallway flows effortlessly into the open-concept living, dining, and kitchen area, all at the rear of the home. The chef’s kitchen includes a walk-in pantry and a long bar top, perfect for casual meals or entertaining guests.
With 4 well-appointed bedrooms, this model is ideal for larger families or vacation rentals. One of the secondary bedrooms features a private bath and an optional exterior entry, making it easily convertible into a rental lock-out room for added flexibility. The rear of the home opens to a sprawling porch that stretches across the entire back, perfect for enjoying the coastal breeze. The master suite offers direct access to this porch, along with a luxurious master bath, including a garden tub, spacious walk-in shower, and a large walk-in closet—ideal for growing families.
Designed for Your Lot and Lifestyle
Whether your beach lot is 60′ x 100′ or larger, the Wavecrest fits most coastal properties, including those on 50’ wide lots in various municipalities. With 4 bedrooms and 3.5 bathrooms, the home invites natural light into its open living space, creating a bright, airy atmosphere perfect for the relaxed beach lifestyle.
Built for Efficiency and Speed
Beyond strength and beauty, every SeaSafe home is Zero Energy Ready, with high-efficiency systems and superior insulation, all included as standard features—something that often costs extra elsewhere. Thanks to advanced off-site construction methods, your Wavecrest home is completed in 75% less time, ensuring protection from the elements and a quicker move-in.
Rebuild with Confidence
Create your dream coastal sanctuary with the Wavecrest Model, where resilience, efficiency, and thoughtful design come together to provide a safe, sustainable, and stylish home.
You said:
replace everyplace it says Wavecrest with Seaglass
ChatGPT said:
Seaglass Faster Stronger Elevated: The Seaglass Model by SeaSafe Homes
Welcome to the Seaglass Model, where coastal living meets the future of resilience and innovation. Built for extreme environments, this home sets a new standard in hurricane-proof design. Featuring a robust 2×10 floor system and 2×6 walls, it’s engineered to endure wind speeds of up to 180 MPH, going beyond the typical 150 MPH codes most builders follow. Whether you’re in North Fort Myers Beach or the Florida Keys, this home offers ultimate protection, strength, and peace of mind.
Designed for Coastal Living, Built for Safety and Style
The Seaglass is more than just a home—it’s a smart, family-friendly space. Step inside through the spacious front porch, into a welcoming foyer complete with double coat closets. The large hallway flows effortlessly into the open-concept living, dining, and kitchen area, all at the rear of the home. The chef’s kitchen includes a walk-in pantry and a long bar top, perfect for casual meals or entertaining guests.
With 4 well-appointed bedrooms, this model is ideal for larger families or vacation rentals. One of the secondary bedrooms features a private bath and an optional exterior entry, making it easily convertible into a rental lock-out room for added flexibility. The rear of the home opens to a sprawling porch that stretches across the entire back, perfect for enjoying the coastal breeze. The master suite offers direct access to this porch, along with a luxurious master bath, including a garden tub, spacious walk-in shower, and a large walk-in closet—ideal for growing families.
Designed for Your Lot and Lifestyle
Whether your beach lot is 60′ x 100′ or larger, the Seaglass fits most coastal properties, including those on 50’ wide lots in various municipalities. With 4 bedrooms and 3.5 bathrooms, the home invites natural light into its open living space, creating a bright, airy atmosphere perfect for the relaxed beach lifestyle.
Built for Efficiency and Speed
Beyond strength and beauty, every SeaSafe home is Zero Energy Ready, with high-efficiency systems and superior insulation, all included as standard features—something that often costs extra elsewhere. Thanks to advanced off-site construction methods, your Seaglass home is completed in 75% less time, ensuring protection from the elements and a quicker move-in.
Rebuild with Confidence
Create your dream coastal sanctuary with the Seaglass Model, where resilience, efficiency, and thoughtful design come together to provide a safe, sustainable, and stylish home.